
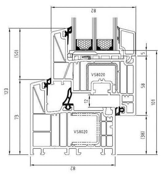
thermo 82 linea di infissi in pvc a 6 camere e 3 guarnizioni.
sezione telaio 82X73 sezione anta 82X85
tenuta con 3 guarnizioni
classi di certificazione:
permeabilitè all’aria UNI EN 12207: in classe 4
permeabilità all’acqua UNI EN 12208: in classe 9A
Resistenza al carico di vento UNI EN 12210: in classe C3/
trasmittanza termica: uw fino a 0.71 w/m2k


