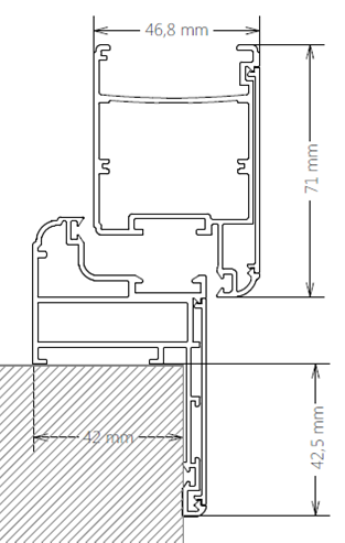
rustica90° persiana in alluminio orientabile sezione telaio 49X83 sezione anta 47X71 resistenza al carico del vento classe 6 Mi piace Caricamento...