
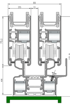
slide 65 linea infissi in alluminio a taglio termico scorrevole in linea
sezione telaio 65X50 sezione anta 35X75
classi di certificazione:
permeabilitè all’aria UNI EN 12207: in classe 4
permeabilità all’acqua UNI EN 12208: in classe 7A
Resistenza al carico di vento UNI EN 12210: in classe C4
trasmittanza termica: uw fino a 1.8 w/m2k


