
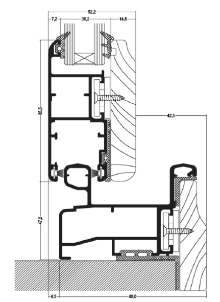
slide wood linea infissi eco in alluminio legno scorrevole in linea
sezione telaio 88X55 sezione anta 52X85
classi di certificazione:
permeabilitè all’aria UNI EN 12207: in classe 4
permeabilità all’acqua UNI EN 12208: in classe 9A
Resistenza al carico di vento UNI EN 12210: in classe A4/B3
trasmittanza termica: uw fino a 2.0 w/m2k


